內容摘要:恒光電器,照亮您的生活,專業LED照明,22年專注照明行業-從科研,開發,設計,到精選優質材料制造,再到生產重量的嚴格控制,保證到用戶手中是優質精選產品-為您提供最安全、穩定的照明解決方案-室內照明燈光設計,照明轉換工程,節能環保工程提供解決照明燈光設計方案
酒店大堂燈光照明設計要求
- 用戶名:樂圖
- 發布時間:2013-05-23 11:05
- 點擊:190 次
- 裝修用途:酒店大堂裝修
燈光照明設計要求:
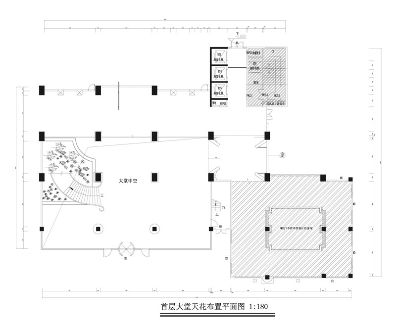
我是恒光的經銷商,現有一個酒店工程要重新裝修,共有兩屋,每層面積為1800平方米。請根據大堂結構設計,最時尚,最高檔的酒店照明方案。
酒店大堂燈光照明設計方案
- 用戶名:恒光設計師
- 裝修用途:酒店大堂裝修
燈光照明設計說明:
1、大堂天花以天花燈(筒燈)作為主要照明燈具,現已根據現場的樓層高度和光學原理,并按酒店每平方米的照度標準和注明標準,配置最優化的天花燈(筒燈)照明方案。 (1)中空大廳配置25瓦的恒光系列COB天花燈,3000K色溫的照明設計。 (2)大廳采用12W的恒光系列天花燈B型(筒燈),3000K色溫的照明設計。 2、根據酒店空間結構設計多款天花池,裝飾酒店空間: (1)大型天花池,配置LED蠟燭球泡做的大型水晶吊燈。 (2)中型天花池,配置LED蠟燭球泡做的中型水晶吊燈。 (3)天花池四周用T5-LED燈管做暗槽。 3、樓梯和走道,采用天花裝COB的LED方形射燈。













































































