60平方米住宅燈光照明設計解決方案
- 用戶名:易風
- 發布時間:2013-07-18 10:56
設計需求圖紙
設計需求說明60平方米,一個主人房、一個是我小女兒的房、有大廳、飯廳、廚房標準的小戶型商品樓,今年準備裝修,請朋友幫我設計了一下房子布局圖。我的裝修風格比較簡單,舒服就好。 |
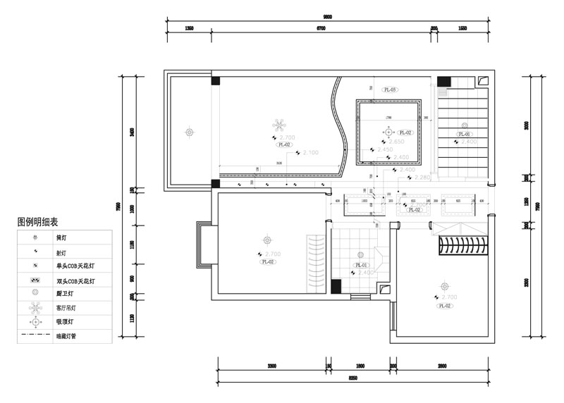
燈光照明設計方案回復回復時間:2013-08-02 14:33燈光照明設計布局圖
燈光照明設計方案說明1、入室走道,做三個長方型的天花池造型,池四周用T5-LED燈管做暗槽。 2、飯廳做一個方型的天花池,池四周用T5-LED燈管做暗槽,中間裝LED蠟燭球泡做的吊燈。 3、大廳做一個L型的暗槽,槽里面用T5-LED燈管打暗光,中間裝LED蠟燭球泡做的水晶吊燈。電視柜上配四個LED小射燈,看電視時可打開。 4、主人房和小孩房放一盞LED家裝吸頂燈。 5、廚房、衛生間正中各裝LED吸頂廚衛燈。 6、具體的布局請看設計圖。 |
燈光照明設計方案相關產品推薦 |







































































